JD3-100/133漏电继电器概述
JD3-100/133漏电继电器适用于交流电压至660V或更高的TN、TT、和IT系统,频率为50Hz。通过零序电流互感器检测出超过整定值的零序(剩余)漏电电流。该继电器与分励脱扣器或失压脱扣器的断路器、交流接触器、磁力启动器等组成漏电保护装置,作漏电和触电保护之用,可配备蜂鸣器、信号等各种声光器件结合组成漏电报警装置。JD3-100/133漏电继电器采用导轨安装,具有动作可靠、连续供电稳定且操作简易。能适应各地用户,可以用来对线路进行接地故障保护,主要用来防止由于接地故障电流引起的设备事故或电气火灾,也可用来对人体触电解除提供间接接触保护。
工作原理
JD3-100/133属于电子式电流动作型漏电继电器,主要由零序电流互感器、电子线路、试验回路及出口继电器组成其。工作原理如下:穿入主线路的零序互感器,在主线路没有漏电的情况下,矢量和等于零或极微,当主线路上有漏电或人触电时,零序互感器就感应到一个不平衡的电流矢量和信号,零序电流互感器的电路发生对地漏电时iA+iB+iC≠0。送入主机进行放大后,检测漏电流是否超过整定值,并把结果送入执行机构来执行。此时零序电流互感器会产生一个感应信号,此信号经电子线路处理,当漏电电流达到动作值时,使可控硅导通触使继电器动作,利用继电器常开、闭点控制主线路断路器或接触器断开,切除故障线路达到保护的目的。试验回路由电阻与按钮等元件组成,按下试验按钮,有一电流流过互感器,相当于主线路有漏电电流,指示灯亮,出口继电器就应能动作。按下复归按钮,灯灭,出口继电器返回。

主要技术参数
| 额定参数 |
| 动作电流 |
30~300mA范围可调,50~500mA范围可调 |
| 快速型动作时间 |
<0.1S |
| 延时型动作时间 |
0.1S、0.2S、0.5S可选 |
| 额定剩余不动作电流 |
50% |
| 复归方式 |
手动复归 |
| 互感器孔径 |
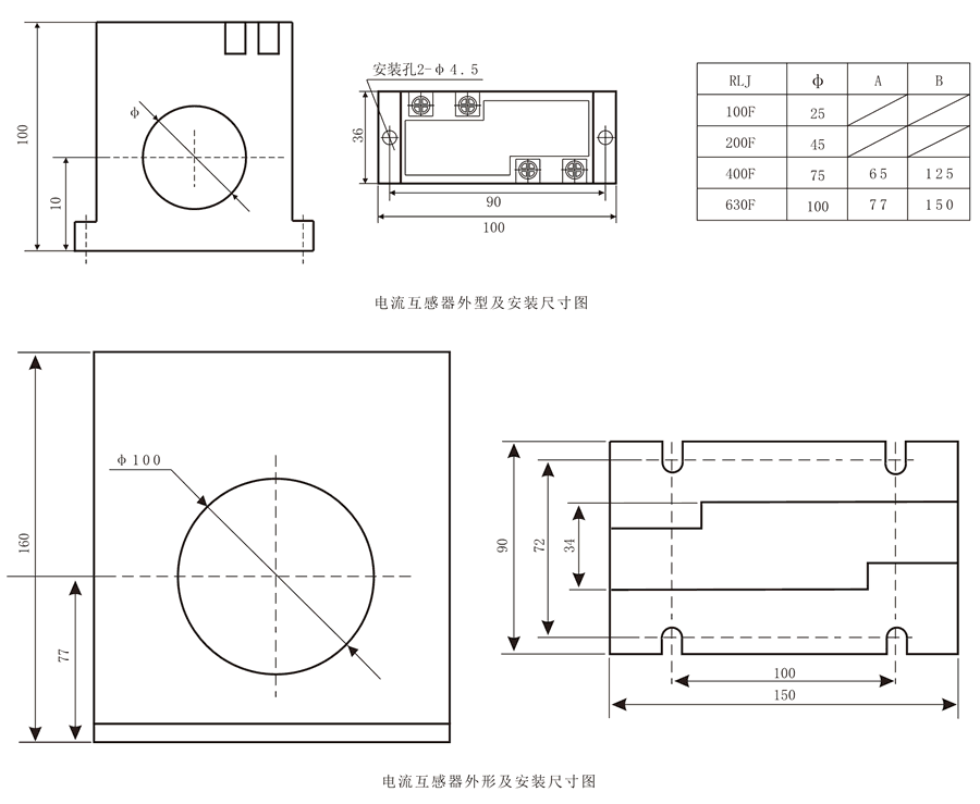
25mm,45mm,100mm,150mm、200mm或方形非标 |
| 功耗 |
≤5W |
| 绝缘性能 |
| 绝缘电阻 |
继电器外壳与外露带电端子之间用开路电压500V的兆欧表测量,绝缘电阻不小于10MΩ |
| 绝缘耐压 |
继电器外壳与外露带电端子之间能耐受2KV(有效值)50Hz试验电压,历时1分钟,无击穿或闪络现象 |
| 环境条件 |
| 环境温度 |
-15℃~55℃ |
| 工作电压 |
不大于120%额定电压 |
| 工作位置 |
任意 |
| 周围磁场强度 |
小于0.5mT |
| 环境相对湿度 |
不大于90% |
| 大气压力 |
80~110KPa |
| 温度 |
-25℃~+70℃ |
| 海拔高度 |
不大于2500 米 |
主要特点
典型应用图
JD3-100/133漏电继电器外形及安装尺寸图
互感器外形及安装尺寸图