JZB-11B用途
JZB-11B保持中间继电器,此类继电器具有自保持绕组,用于直流操作的继电器保护回路中,以增加主保护继电器的触点数量和接点容量,并提高触点工作的可靠性。
JZB-11B、12B、13B、16B为电压动作,电流保持的中间继电器;JZB-14B为电流动作,电压保持的中间继电器;JZB-15B可电流或电压动作,电流保持或电压保持的中间继电器。
JZB-11B原理及结构
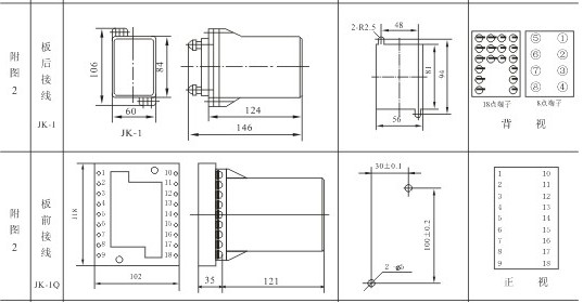
本继电器由电子元件和小型大功率继电器组成继电器采用JK-1壳体结构,其外形及开孔尺寸见附图。
JZB-11B内部端子图

注:带保持线圈的触点为保持触点